Are you interested in inspecting this property?
Get in touch to request an inspection.
Request an inspection
Land for Sale in Victoria Point
HOUSE & LAND FIXED PRICE PACKAGE
- Land: 444m²
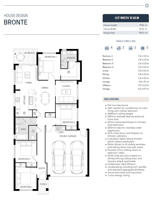
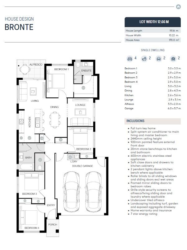
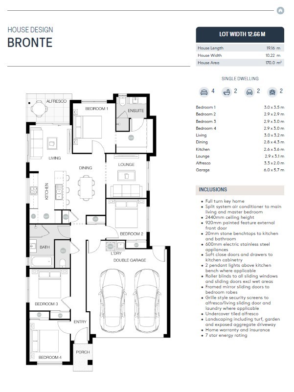
- Split system air conditioner to main living and master bedroom
- 2440mm ceiling height
- 920mm painted feature external front door
- 20mm stone benchtops to kitchen and bathroom
- 600mm electric stainless steel appliances
- Soft close doors and drawers to kitchen cabinetry
- 2 pendant lights above kitchen bench where applicable
- Roller blinds to all sliding windows and sliding doors excl wet areas
- Framed mirror sliding doors to bedroom robes
- Grille style security screens to alfresco/living sliding door and laundry where applicable
- Undercover tiled alfresco
- Landscaping including turf, garden and exposed aggregate driveway
- Home warranty and insurance
- 7 star energy rating
Land:
444m² / 0.11 acres
Share:
This property is being sold by auction or without a price and therefore a price guide can not be provided. The website may have filtered the property into a price bracket for website functionality purposes.
Contact
Agents
- Loading...
Loan Market
Loan Market mortgage brokers aren’t owned by a bank, they work for you. With access to over 60 lenders they’ll work with you to find a competitive loan to suit your needs.
